Ob erste Idee, konkrete Planung oder stockendes Projekt – im Gespräch klären wir, was möglich ist und welche nächsten Schritte sinnvoll sind.
Du möchtest Laden, Büro, Praxis oder Produktion anders nutzen – etwa als Kita, Gastronomie, Lager oder Bürofläche. Als Architekt für Nutzungsänderung im Gewerbe werden Baurecht, Brandschutz, Stellplätze, Schallschutz und Arbeitsstättenanforderungen geprüft und der Antrag so vorbereitet, dass deine neue Nutzung offiziell tragfähig wird.
Gebietstyp, Bebauungsplan und bisherige Nutzung werden geprüft und eingeordnet.
Flächen, Erschließung und Funktionsbereiche werden auf die neue Nutzung zugeschnitten.
Nur weil eine Nutzung seit Jahren „einfach läuft“, bedeutet das nicht, dass sie baurechtlich gesichert ist. Spätestens bei Beschwerden, Betriebsprüfung, Umbau oder Verkauf wird gefragt, welche Nutzung tatsächlich genehmigt wurde – und ob die aktuelle Nutzung damit überhaupt übereinstimmt.
Der laufende Betrieb vermittelt Sicherheit, doch ohne klare Genehmigung kann schon eine kleine Änderung Auslöser für eine komplette Neubewertung werden.
Lager im Hof, Büro in der Halle, Showroom im ehemaligen Lager – viele Lösungen haben sich entwickelt, ohne jemals formal geprüft zu werden.
Mehr Mitarbeiter, längere Öffnungszeiten oder zusätzliche Nutzungseinheiten klingen nach Wachstum, können aber Stellplatz-, Lärm- oder Brandschutzgrenzen überschreiten.
Du möchtest deinen Betrieb anpassen – mehr Fläche, andere Nutzung, zusätzliche Funktionen – erhältst aber widersprüchliche Aussagen dazu, was zulässig ist. Mal heißt es „das geht schon so“, mal „das war noch nie genehmigt“. Während du investierst, weißt du nicht, ob die neue Nutzung dauerhaft Bestand hat.
Gleichzeitig steigen Anforderungen an Lärm, Emissionen, Brandschutz und Stellplätze. Ohne strukturierten Blick auf Flächen, Prozesse und Rechtslage riskierst du, dass dein Geschäftsmodell an baurechtlichen Rahmenbedingungen scheitert statt am Markt.
Zwischen Bauordnung, Immissionsschutz, Arbeitsstättenregeln und Mietvertrag verliert sich der Überblick.
Umbauten, Miete oder Kauf werden beschlossen, bevor klar ist, ob die gewünschte Nutzung überhaupt genehmigt werden kann.
Nachbarn, Mieter oder Kommune reagieren sensibel auf Lärm, Verkehr und Besucheraufkommen.
Gebietstyp, Bebauungsplan, bisherige Nutzung und Rahmenbedingungen werden geprüft. Wir klären, welche Arten von gewerblicher Nutzung grundsätzlich zulässig sind und wo Konflikte entstehen könnten.
Flächen, Abläufe und Funktionsbereiche werden geplant: Erschließung, Kundenwege, Anlieferung, Lager, Büro und Technik. Gleichzeitig werden Stellplätze, Emissionen und Arbeitsplätze mitgedacht.
Benötigte Nachweise zu Brandschutz, Stellplätzen, Lärm oder Arbeitsstätten werden vorbereitet. Pläne, Beschreibungen und Formulare für den Bauantrag Nutzungsänderung Gewerbe werden erstellt und auf Vollständigkeit geprüft.
Im Verfahren werden Rückfragen der Behörde koordiniert und Auflagen bewertet. Nach Genehmigung kann der Umbau oder die Anpassung geplant und umgesetzt werden – mit klarer Grundlage für Betrieb, Vermietung und Finanzierung.
Du kannst uns jederzeit in unserem Beratungsbüro besuchen oder für weitere Informationen kontaktieren.
Ob erste Idee, konkrete Planung oder stockendes Projekt – im Gespräch klären wir, was möglich ist und welche nächsten Schritte sinnvoll sind.
Die Case Studies zeigen, wie aus Ladenflächen Büros, aus Hallen Showrooms oder aus Praxen neue Nutzungskonzepte wurden – mit geklärten Nachweisen, nachvollziehbaren Abläufen und rechtssicherer Grundlage für den Betrieb.
Hamburg
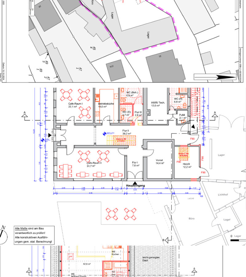
Umplanung eines ehemaligen Bauernhofes in ein multifunktionales Gebäude mit Café, Büros und Wohnflächen.
Umnutzung eines historischen Lager- und Stallgebäudes in ein Mehrfamilienhaus.
Ein hochwertiges, charaktervolles Mehrfamilienhaus, das historischen Charme mit modernem Wohnkomfort vereint.
Hannover
Nutzungsänderung und Umbau zweier Wohngebäude in eine Einrichtung für Betreutes Wohnen.
Ein vollständig genehmigtes und umgebautes Wohnprojekt mit sozialer Funktion – moderne, sichere und betreuungsfreundliche Räume in zentraler Lage.
Garbsen
Nutzungsänderung einer Einzelhandelsfläche in eine voll ausgestattete Gastronomieeinheit.
Erfolgreich genehmigter Gastronomiebetrieb – funktional, effizient und regelkonform umgesetzt.
Hildesheim
Nutzungsänderung eines Dachraums, ursprünglich als Lager genutzt, in eine vollwertige Wohnung.
Peine
Ein genehmigter und gut funktionierender Soft-Gastro-Betrieb – minimaler technischer Aufwand, maximale Nutzbarkeit.
Hildesheim
Nutzungsänderung eines ehemaligen Reisebüros in eine kombinierte Gastronomie- und Süßwarenfläche.
Peine
Erstgespräch klärt Geschäftsidee, Standort, Flächenbedarf und zeitliche Erwartungen an die neue Nutzung.
Baurechtliche und technische Rahmenbedingungen werden geprüft, ein Nutzungskonzept mit Flächenlayout entwickelt.
Nachweise, Pläne und Beschreibungen werden zu einem schlüssigen Bauantrag zur Nutzungsänderung zusammengeführt.
Behördliches Verfahren, Auflagen und bauliche Umsetzung werden begleitet, bis die neue Nutzung starten kann.
Eine Nutzungsänderung Gewerbe wird relevant, wenn bestehende gewerbliche Flächen anders genutzt werden sollen – zum Beispiel, wenn aus einem Laden ein Büro, aus einer Halle ein Showroom oder aus einer Praxis eine Kita wird. Dabei reicht es nicht, Möbel umzustellen oder Abläufe zu ändern: Entscheidend sind Baurecht, Brandschutz, Stellplätze, Lärm- und Immissionsschutz, Erschließung und oft auch Arbeitsstättenanforderungen. Ein Architekt für Nutzungsänderung Gewerbe prüft diese Rahmenbedingungen und übersetzt dein Geschäftsmodell in ein baurechtlich tragfähiges Nutzungskonzept.
Zentral ist die Frage, ob die geplante Nutzung zum Gebietstyp und zum Bebauungsplan passt und welche Auswirkungen sie auf Umfeld, Verkehr und Nachbarschaft hat. Auf dieser Basis werden Grundrisse, Fluchtwege, Rettungswege und Funktionsbereiche geplant. Ergänzend werden Stellplatznachweise, Brandschutznachweise und gegebenenfalls Lärm- oder Emissionsbewertungen benötigt, damit der Bauantrag Nutzungsänderung Gewerbe vollständig ist.
Professionell vorbereitete Unterlagen reduzieren Rückfragen im Verfahren und schaffen Sicherheit für Betreiber, Vermieter, Investoren und Banken. Wer frühzeitig in eine strukturierte Nutzungsänderung Gewerbe investiert, minimiert das Risiko späterer Auflagen, Einschränkungen oder Nutzungsuntersagungen und sorgt dafür, dass der Standort langfristig zu Nutzung, Markt und Wachstum passt.